Bedrooms
Rent
Location

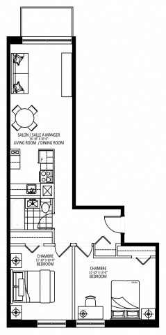
Plateau Mont-Royal Apartment 2 b. $1,949/month. Apartment for rent in Plateau Mont-Royal

Ad id. #206585:

Details:

Available: now (...)

Contact:

Description

3655 Papineau is located in the heart of the Plateau Mont-Royal borough, a highly sought-after area of Montreal offering an array of dining and shopping delights right at your doorstep. This vibrant community neighbours the expansive Parc Lafontaine, providing serene walking paths and lush green spaces nestled in the heart of the city. Residents will enjoy beautiful balconies, featuring views of Mont-Royal and the downtown core, while the community itself boasts a range of thoughtful amenities. Stay active at the well-equipped fitness center, and with the nearby Papineau metro station, you can effortlessly explore all that Montreal has to offer. For students, it's a quick journey to both McGill University and the Université du Québec à Montréal. Discover everything you need in an apartment rental at 3655 Papineau.
*E & OE conditions apply. Advertised price reflects a promotional discount of one month distributed over 12 months or one month free or two months free on 24 months lease on select suites. Please contact your Community Leasing Agent for more information.

Address and location

3655 Avenue Papineau H2K 4K1 Plateau Mont-Royal

Actions: