Bedrooms
Rent
Location

Downtown - Montreal Apartment 1 b. $1,629/month. Apartment for rent in Downtown - Montreal

Ad id. #203929:

Details:

Available: now (...)

Contact:

Description

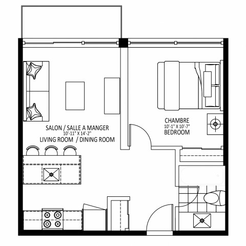
Welcome to 3474 Hutchison, ideally situated just steps from downtown Montreal. Tailored for students and young professionals, this community is conveniently located near McGill University, the Place-des-Arts Metro station, and Montreal's Eaton Center, ensuring an abundance of shopping and dining opportunities. If you're seeking to immerse yourself in the heart of this vibrant city, then 3474 Hutchison is the perfect place to call home, with Provigo Grocery, Université du Quebec à Montréal (UQAM), Starbucks, Mont-Royal, and Jeanne Mance Park just a stone's throw away, making your daily life both convenient and exciting.

*E & OE conditions apply. Advertised price reflects a promotional discount of one month distributed over 12 months or one month free or two months free on 24 months lease on select suites. Please contact your Community Leasing Agent for more information.

Address and location

3474 Hutchison H2X 2G7 Downtown - Montreal

Actions: