Chambres
Loyer
Emplacement

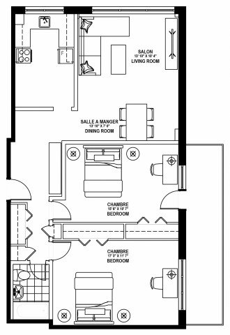
Appartement 4 1/2 Hampstead 1 779 $/mois. Appartement à louer Hampstead

Annonce #212771:

Détails:

Disponible: novembre 2025 (...)

Contact:

Description

Bienvenue au 4875 Dufferin, une communauté bien située dans le quartier Côte-des-Neiges de Montréal. Située entre les stations de métro Villa-Maria et Snowdon, elle offre aux résidents un accès facile à toute la ville à quelques pas de leur porte d?entrée. Sa situation géographique permet aux résidents de se rendre en quelques minutes seulement à l?Université de Montréal et au campus Loyola de Concordia, et en treize minutes en voiture au centre-ville de Montréal. Choisissez parmi une variété de plans d?étage, y compris des studios, des appartements d?une et de deux chambres à coucher en location, dotés de cuisines rénovées et de chambres à coucher spacieuses. Ces appartements sont fraîchement rénovés et offrent des balcons spacieux et des espaces communs modernes. Le quartier de Hampstead est entouré d?espaces verts et de parcs comme le parc Macdonald, qui offre des aires de jeux et des patinoires. Idéal pour les étudiants des universités voisines, le 4875 Dufferin Ave offre un sentiment d?appartenance à la communauté tout en facilitant l?accès à la vie urbaine. Venez y habiter dès aujourd?hui!
*Les conditions E et OE s'appliquent. Le prix annoncé reflète un rabais promotionnel équivalant à un mois réparti sur 12 mois ou un mois gratuit, ou encore deux mois gratuits sur un bail de 24 mois, sur certaines unités sélectionnées. Veuillez communiquer avec votre agent(e) de location communautaire pour plus d?information.

Adresse et emplacement

4875 Dufferin H3X 2E5 Hampstead

Actions: