Chambres
Loyer
Emplacement

Condo 4 1/2 Vimont et Auteuil 1 950 $/mois. Appartement à louer Vimont et Auteuil

Annonce #212433:
  • · Ajoutée le 2025-11-10, vue 1 fois

Détails:

  • · Vimont et Auteuil, Laval
  • · 4 1/2
  • · 1 950 $ / mois
  • · Loyer inclus stationnement
  • · Bail annuel
  • · Condos
  • · Autre: a/c, foyer, chats ok, non fumeur, balcons

Disponible: janvier 2026

Contact:

Description

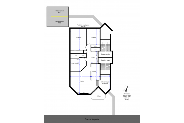
Grand condo bien entretenu avec des grandes pièces
- 2 Chambres
- 1 salle de bain
- 1 cuisine
- 1 salon
- 1 salle à manger (ou autre fonction selon préférence)
- 1 entrée

Caractéristiques :
- Balcon côté Sud-Est, ensoleillé tout le matin
- Foyer au bois
- Fenêtres neuves de 2025
- 1 stationnement extérieur
- Thermopompe murale
- Micro-onde (hotte de cuisine)
- Lave-vaisselle
- Rue tranquille, près de l'hôpital et des services
- Déneigement ainsi qu'entretien du terrain inclus
- Non-fumeur
- Chat permis

Adresse et emplacement

2050 Rue De Magenta, Laval, Québec H7M 5X6, Canada Vimont et Auteuil

Actions: