Chambres
Loyer
Emplacement

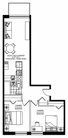
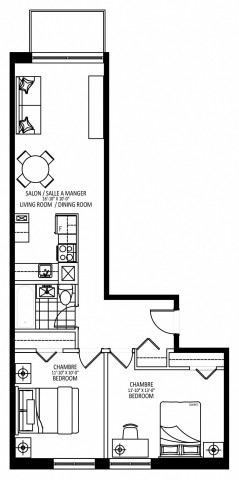
Appartement 4 1/2 Plateau Mont-Royal 2 079 $/mois. Appartement à louer Plateau Mont-Royal

Annonce #212325:

Détails:

Disponible: maintenant (...)

Contact:

Description

Le 3655 avenue Papineau est situé au c?ur de l?arrondissement du Plateau Mont-Royal, un quartier très en vogue de Montréal qui offre une multitude de restaurants et de boutiques à portée de main. Cette communauté dynamique est voisine du vaste parc Lafontaine, qui offre des sentiers de promenade paisibles et des espaces verts luxuriants au c?ur de la ville. Les résidents bénéficient de magnifiques balcons avec vue sur le Mont-Royal et le centre-ville, tandis que la communauté elle-même s?enorgueillit d?une gamme de commodités bien pensées. Vaquez à vos activités sportives dans la salle d?entraînement bien équipée et, grâce à la station de métro Papineau à proximité, vous pourrez découvrir aisément tout ce que Montréal a à offrir. Pour les étudiants, l?Université McGill et l?Université du Québec à Montréal sont rapidement accessibles. Profitez de tout ce que la vie a de plus beau en vous installant au 3655 avenue Papineau.

*Les conditions E et OE s'appliquent. Le prix annoncé reflète une remise promotionnelle d'un mois distribué sur 12 mois ou d'un mois gratuit ou de deux mois gratuits sur un bail de 24 mois pour certaines suites. Veuillez contacter votre agent de location communautaire pour plus d'informations.

Adresse et emplacement

3655 Avenue Papineau H2K 4K1 Plateau Mont-Royal

Actions: