Chambres
Loyer
Emplacement

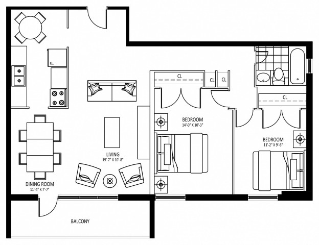
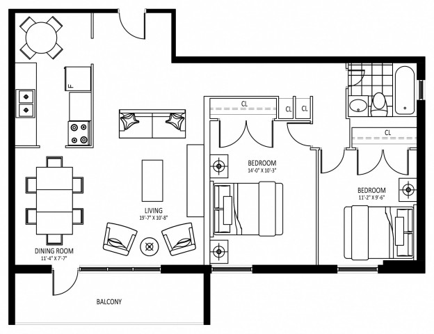
Appartement 4 1/2 Grand Toronto 2 699 $/mois. Appartement à louer Grand Toronto

Annonce #210999:

Détails:

  • · Grand Toronto, Ontario
  • · 4 1/2
  • · 2 699 $ / mois
  • · Loyer inclus chauffage, eau chaude
  • · Bail annuel
  • · Bloc appartements
  • · Autre: ...

Disponible: décembre 2025 (...)

Contact:

Description

Bienvenue au 919 Dufferin ! Situées à côté du pittoresque Dufferin Grove Park, ces suites spacieuses de 1 et 2 chambres à coucher offrent une expérience de vie idéale à Toronto. Les nécessités quotidiennes sont facilement accessibles grâce au vaste centre commercial Dufferin Mall situé juste en face, et la rue Bloor Ouest offre une pléthore d'options de restauration à quelques pas de votre porte. Admirez le coucher de soleil sur le lac Ontario depuis votre balcon privé ou faites un petit tour au centre-ville en empruntant la ligne TTC toute proche. Avec une variété de plans d'étage qui conviennent à tous les styles de vie, vous adorerez vous installer au 919 Dufferin.

Adresse et emplacement

919 Dufferin Street M6H 4B3 Grand Toronto

Actions: