Chambres
Loyer
Emplacement

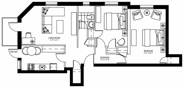
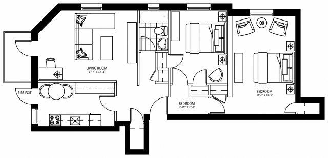
Appartement 4 1/2 Ottawa 2 289 $/mois. Appartement à louer Ottawa

Annonce #210770:

Détails:

  • · Ottawa, Ontario
  • · 4 1/2
  • · 2 289 $ / mois
  • · Loyer inclus chauffage, eau chaude
  • · Bail annuel
  • · Bloc appartements
  • · Autre: ...

Disponible: novembre 2025 (...)

Contact:

Description

Découvrez le summum de la vie patrimoniale haut de gamme sur l?avenue King Edward, à quelques pas du c?ur vibrant du centre-ville et de l?Université d?Ottawa. Offrant des appartements d?une, de deux et de trois chambres à coucher de style patrimonial, cette communauté de Sandy Hill est parfaite pour ceux qui recherchent plus d?espace, sans compromettre l?emplacement. Nichée dans le centre-ville d?Ottawa, près du canal Rideau, elle attire les jeunes professionnels et les adultes souhaitant jouir d?un accès facile aux attractions les plus captivantes de la ville. L?Université d?Ottawa se trouve au bout de la rue, tandis que le marché By, qui regorge de restaurants, de cafés, de boutiques et de pubs, ne se trouve qu?à quelques minutes de marche. Vivez l?effervescence du centre-ville à l?avenue King Edward, où l?Université d?Ottawa, le Centre Rideau, l?hôpital Monfort, le supermarché Loblaws, le marché By, le parc Strathcona et l?OC Transpo sont tous à quelques pas.

Adresse et emplacement

475 King Edward Avenue K1N 7N1 Ottawa

Actions: