Chambres
Loyer
Emplacement

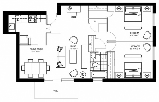
Appartement 4 1/2 Mississauga 2 599 $/mois. Appartement à louer Mississauga

Annonce #203491:

Détails:

  • · Mississauga, Ontario
  • · 4 1/2
  • · 2 599 $ / mois
  • · Loyer inclus chauffage, eau chaude
  • · Bail annuel
  • · Bloc appartements
  • · Autre: ...

Disponible: maintenant (...)

Contact:

Description

Découvrez la commodité de la vie dans le sud de Mississauga au 1015 Orchard Road, une communauté de sept étages offrant un mélange de studios, d'appartements d'une ou deux chambres à coucher et de stationnements privés. Située juste au nord du lac Ontario, cette communauté offre un accès facile aux commerces de détail, aux parcs, aux espaces verts et à de nombreuses options de transport public, y compris la station Long Branch Go, assurant des liaisons rapides avec la région du Grand Toronto et le centre-ville de Toronto. Avec un accès facile au Queen Elizabeth Way et à la station Long Branch Go, le 1015 Orchard Road offre le confort de la vie de banlieue et un accès pratique aux villes voisines.

Adresse et emplacement

1015 Orchard L5E 2N8 Mississauga

Actions: