Chambres
Loyer
Emplacement

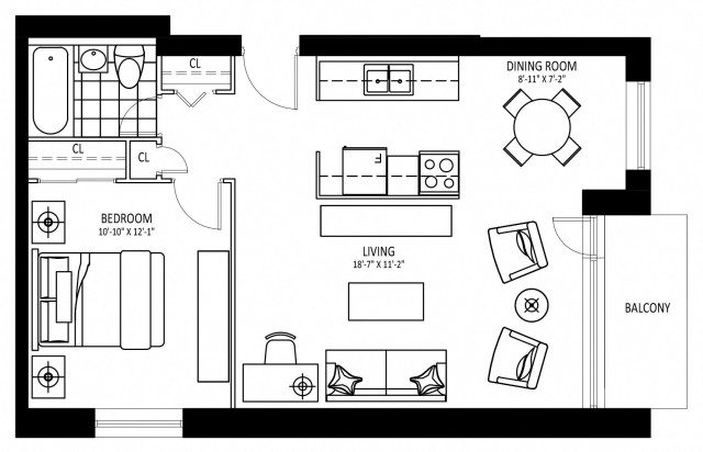
Appartement 2 1/2 Grand Toronto 2 399 $/mois. Appartement à louer Grand Toronto

Annonce #194345:

Détails:

  • · Grand Toronto, Ontario
  • · 2 1/2
  • · 2 399 $ / mois
  • · Loyer inclus chauffage, eau chaude
  • · Bail annuel
  • · Bloc appartements
  • · Autre: ...

Disponible: janvier 2026 (...)

Contact:

Description

Au 155 Lake Shore, vous avez le choix entre des studios spacieux et des appartements d'une ou deux chambres récemment rénovés, d'où vous pourrez profiter de la vue sur le lac Ontario depuis votre balcon privé. Cet emplacement de choix offre un accès facile à une variété de restaurants, de boutiques et de parcs à quelques minutes seulement. Nichés le long de la rive nord du lac Ontario, les résidents bénéficient d'un accès au bord de l'eau, à deux pas du Rotary Peace Park, et à proximité d'un grand nombre d'écoles et de magasins. Les attractions à proximité comprennent le Rotary Peace Park, le Humber College, le Colonel Samuel Smith Park, le Lakeshore Yacht Club, le YMCA du Grand Toronto, Whimbrel Point, le Dixie Outlet Mall, le Toronto Golf Club et l'aéroport international Pearson de Toronto.

Adresse et emplacement

155 Lake Shore M8V 2A1 Grand Toronto

Actions: