 
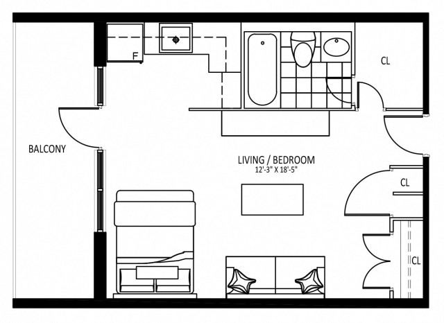
                  Bienvenue au 919 Dufferin ! Situées à côté du pittoresque Dufferin Grove Park, ces suites spacieuses de 1 et 2 chambres à coucher offrent une expérience de vie idéale à Toronto. Les nécessités quotidiennes sont facilement accessibles grâce au vaste centre commercial Dufferin Mall situé juste en face, et la rue Bloor Ouest offre une pléthore d'options de restauration à quelques pas de votre porte. Admirez le coucher de soleil sur le lac Ontario depuis votre balcon privé ou faites un petit tour au centre-ville en empruntant la ligne TTC toute proche. Avec une variété de plans d'étage qui conviennent à tous les styles de vie, vous adorerez vous installer au 919 Dufferin.