Chambres
Loyer
Emplacement

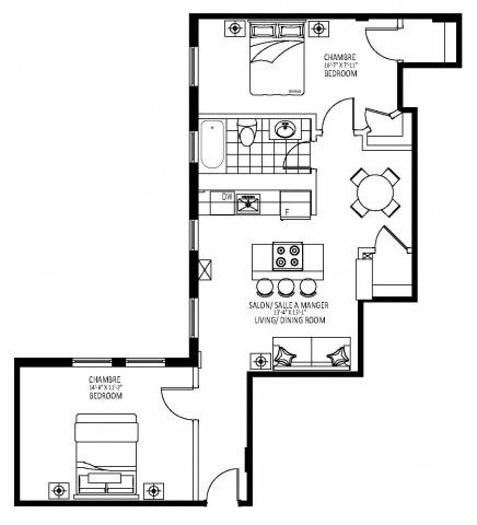
Appartement 4 1/2 Westmount 1 849 $/mois. Appartement à louer Westmount

Annonce #214931:

Détails:

  • · Westmount, Montréal - Centre
  • · 4 1/2
  • · 1 849 $ / mois
  • · Loyer inclus chauffage, eau chaude
  • · Bail annuel
  • · Bloc appartements
  • · Autre: ...

Disponible: maintenant (...)

Contact:

Description

Bienvenue au 418 Claremont, un endroit d?une telle élégance que vous tomberez sous le charme en ouvrant la porte d?entrée. Cette communauté dispose d?un somptueux hall d?entrée, d?un stationnement souterrain et d?une buanderie sur place et offre une vue magnifique grâce à sa fenestration abondante. Les résidents tomberont sous le charme des suites superbement rénovées et dotées de planchers de bois franc, de cuisines rénovées et d?une abondance de lumière naturelle. Le 418 Claremont est situé dans le quartier dynamique de Westmount, le long de la rue Sherbrooke Ouest, célèbre pour ses boutiques et ses attractions uniques. Le 418 Claremont est idéalement situé à proximité de plusieurs écoles, du Children?s Hospital et du parc Westmount. De plus, l?accès facile aux autoroutes voisines vous permet d?explorer tout ce que Montréal a à offrir. Bienvenue au 418 Claremont!
*Le prix annoncé inclut une remise promotionnelle de 12 mois ou un mois gratuit pour certaines suites. Veuillez contacter votre agent de location communautaire pour plus d'informations.

Adresse et emplacement

418 Claremont Avenue H3Y 2N2 Westmount

Actions: