Chambres
Loyer
Emplacement

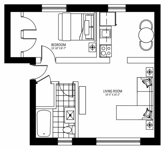
Appartement 2 1/2 Hamilton 1 745 $/mois. Appartement à louer Hamilton

Annonce #210998:

Détails:

  • · Hamilton, Ontario
  • · 2 1/2
  • · 1 745 $ / mois
  • · Loyer inclus chauffage, eau chaude
  • · Bail annuel
  • · Bloc appartements
  • · Autre: ...

Disponible: maintenant (...)

Contact:

Description

Le 775 Concession offre un mélange idéal de commodité urbaine et de quartier recherché. Situé à quelques pas de la vibrante rue Concession, vous aurez une grande variété de magasins à votre porte. Nos studios, appartements d'une ou deux chambres récemment rénovés sont dotés de cuisines modernes, de salles de bains élégantes, de revêtements de sol améliorés et de vues captivantes. Les installations de blanchisserie sur place et le service d'urgence 24 heures sur 24 garantissent une expérience de vie sans tracas. En outre, nous sommes à quelques minutes de Kenilworth et de Sherman Access, d'écoles réputées, de parcs pittoresques et du Hamilton Children's Museum. Pour une communauté accueillante pour les animaux dans un cadre magnifique, planifiez dès aujourd'hui votre visite privée du 775 Concession.

Adresse et emplacement

775 Concession L8V 1C4 Hamilton

Actions: