Bedrooms
Rent
Location

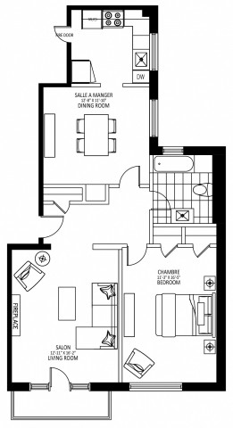
Notre-Dame-de-Grace Apartment 1 b. $1,899/month. Apartment for rent in Notre-Dame-de-Grace

Ad id. #221363:

Details:

Available: now (...)

Contact:

Description

Welcome to your new home at 5881 Monkland, nestled in the heart of Monkland Village. This inviting brick walk-up resides in a charming yet vibrant neighbourhood, offering easy metro access to universities and the lively downtown core. Students can conveniently commute to the University of Montreal or Concordia University's Loyola Campus. Residents will discover an array of exciting amenities, including grocery stores, shops, and community centers, all along the same street. The Monkland Village location provides effortless access to essential services like Provigo and pharmacies, numerous cafes, delightful boutiques, nearby schools, and community parks such as Girouard Park and Park Benny. With comfortable living in such a convenient location, you're sure to find everything you're looking for at 5881 Monkland!

*E & OE conditions apply. Advertised price reflects a promotional discount of one month distributed over 12 months or one month free or two months free on 24 months lease on select suites. Please contact your Community Leasing Agent for more information.

Address and location

5881 Monkland H4A 1G5 Notre-Dame-de-Grace

Actions: