Chambres
Loyer
Emplacement

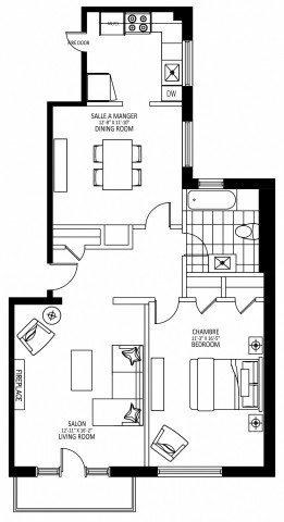
Appartement 2 1/2 Notre-Dame-de-Grâce 2 069 $/mois. Appartement à louer Notre-Dame-de-Grâce

Annonce #209037:

Détails:

Disponible: janvier 2026 (...)

Contact:

Description

Bienvenue dans votre nouvelle demeure, au 5881 Monkland, en plein c?ur du village Monkland. Cet accueillant immeuble sans ascenseur et recouvert de briques se trouve dans un quartier charmant et dynamique, offrant un accès facile par métro aux universités et au centre-ville animé. Les étudiants peuvent facilement se rendre à l?Université de Montréal ou au campus Loyola de l?Université Concordia. Les résidents découvriront un éventail de commodités intéressantes à quelques pas, dont des épiceries, des magasins et des centres communautaires. L?emplacement du Village Monkland permet d?accéder en toute aisance à des services essentiels tels que le Provigo et des pharmacies, de nombreux cafés, de charmantes boutiques, des écoles à proximité et des parcs communautaires tels que le parc Girouard et le parc Benny. Embrassez la véritable vie de quartier, dans un lieu confortable et près de tout au 5881 Monkland!
*Les conditions E et OE s'appliquent. Le prix annoncé reflète un rabais promotionnel équivalant à un mois réparti sur 12 mois ou un mois gratuit, ou encore deux mois gratuits sur un bail de 24 mois, sur certaines unités sélectionnées. Veuillez communiquer avec votre agent(e) de location communautaire pour plus d?information.

Adresse et emplacement

5881 Monkland H4A 1G5 Notre-Dame-de-Grâce

Actions: